Description
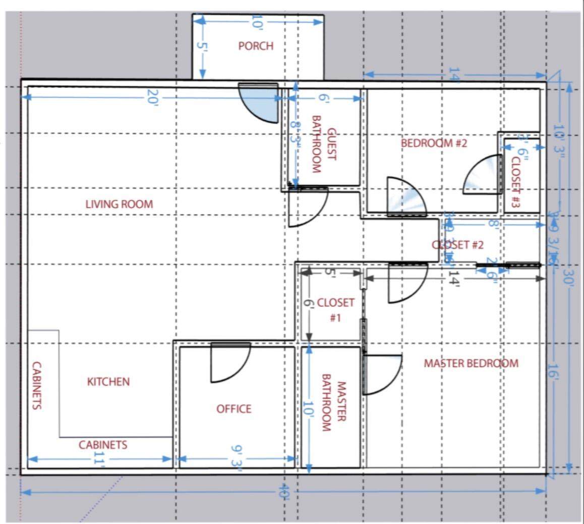
New construction with an estimated completion by late summer of 2025. This thoughtfully designed home offers 2 bedrooms, 2 full bathrooms, and a flexible bonus room that can serve as an office, third bedroom, or media space. Interior selections will include: white kitchen cabinetry and stone countertops, laminate flooring throughout, and tiled bathroom floors and shower walls. Additional features include cement fiber lap siding, 6-panel doors, vinyl double-pane Low-E windows, and a gravel driveway. A practical opportunity for those seeking new construction at an attainable price. Schedule your private showing today. Buyer to verify all information that is important to them. The owner of the property is a licensed Agent in TN (but not GA).
-
2BEDS
-
0.22ACRES
-
2BATHS
-
01/2 BATHS
-
1,240SQFT
-
$218$/SQFT
School Information
Description
New construction with an estimated completion by late summer of 2025. This thoughtfully designed home offers 2 bedrooms, 2 full bathrooms, and a flexible bonus room that can serve as an office, third bedroom, or media space. Interior selections will include: white kitchen cabinetry and stone countertops, laminate flooring throughout, and tiled bathroom floors and shower walls. Additional features include cement fiber lap siding, 6-panel doors, vinyl double-pane Low-E windows, and a gravel driveway. A practical opportunity for those seeking new construction at an attainable price. Schedule your private showing today. Buyer to verify all information that is important to them. The owner of the property is a licensed Agent in TN (but not GA).
7 Catherine Street Rossville, GA 30741
Property Description
Architectural Style [] Attached Garage YN No Carport YN No Construction Materials Fiber Cement Exterior Features Rain Gutters Fencing [] Foundation Details Block Garage YN No Lot Features [] Other Structures [] Parking Features DrivewayGravelOff Street Patio And Porch Features [] Pool Features [] Roof AsphaltShingle Roof Asphalt Yes Roof Shingle Yes Structure Type [] View [] View YN No Waterfront Features [] Waterfront YN No
Accessibility Features [] Appliances MicrowaveElectric Water HeaterElectric RangeDishwasher Basement [] Basement YN No Building Area Total 1240 Cooling Central AirElectric Cooling YN Yes Fireplace Features [] Fireplace YN No Flooring Laminate Heating CentralElectric Heating YN Yes Interior Features [] Laundry Features Laundry Closet Levels One Rooms Living Room (First Level) Kitchen (First Level) Primary Bedroom (First Level) Primary Bathroom (First Level) Bedroom (First Level) Bonus Room (First Level) Bathroom (First Level) Laundry (First Level) Window Features Vinyl Frames
Additional Parcels YN No Association Amenities [] Association YN2 No Auction YN2 No Community Features [] Grazing Permits BLMYN Yes Grazing Permits Private YN No Green Energy Efficient [] Green Energy Generation [] Green Sustainability [] Green Water Conservation [] Listing Terms CashConventionalFHAVA Loan New Construction YN Yes Other Equipment [] Property Sub Type Single Family Residence Security Features [] Senior Community YN No Sewer Septic Tank Special Listing Conditions Agent Owned Tax Annual Amount 24.74 Utilities Electricity AvailableSewer ConnectedWater Available Utilities Sewer Connected Yes Water Source Public

Listing information © 2025 The Multiple Listing Service of Chattanooga, Inc.
Listing courtesy of The Group Real Estate Brokerage: 423-531-9000.